Student: Brent Caroll
This student has shown good CAD skills and shown excellent understanding of a technical documentation.
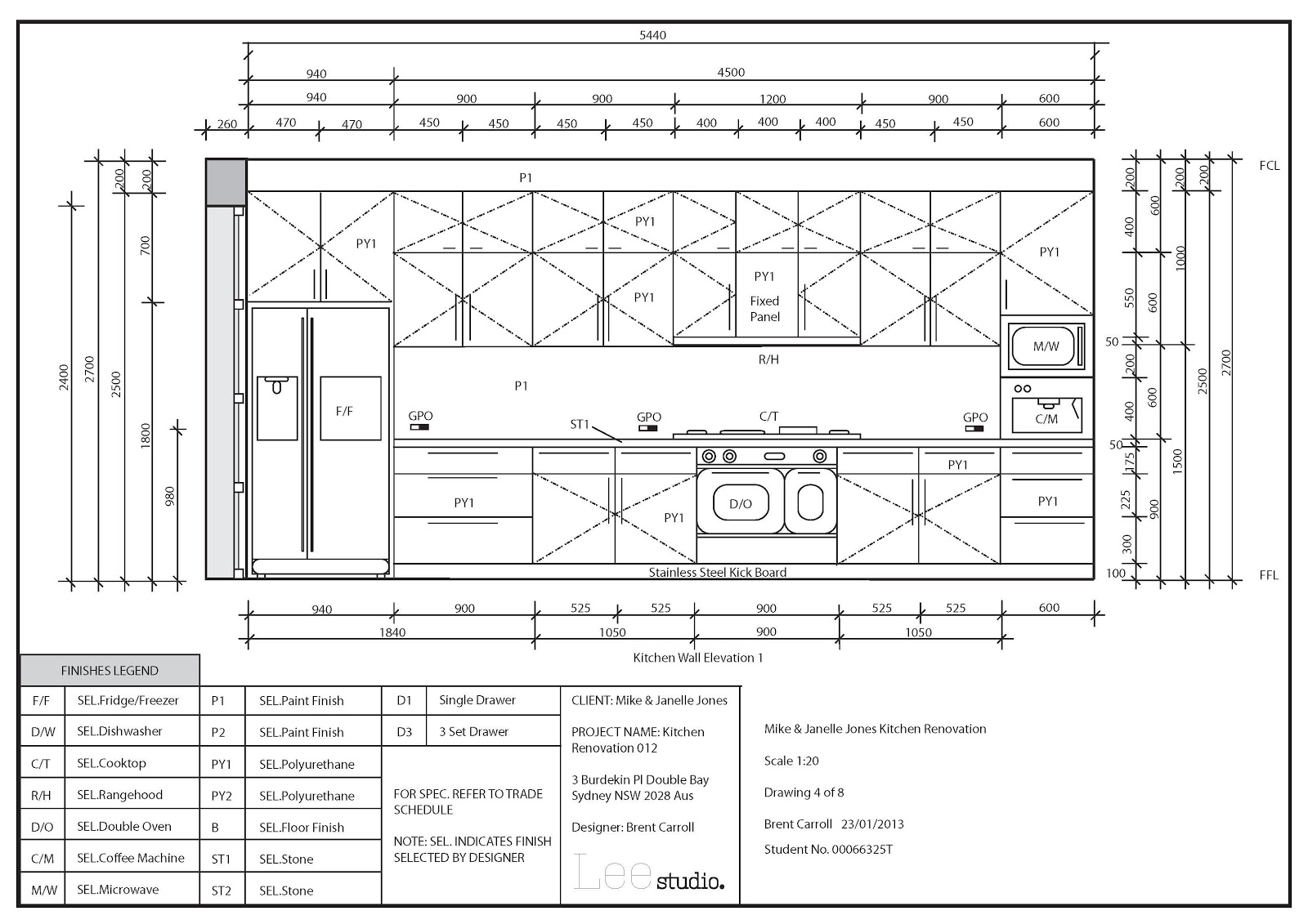
1. Titleblock includes all required information.
2. Cabinets and appliances are indicated and explained in legend
3. Layout A3, all drawings placed in center, scale 1:20, detailed dimensions
4. Symbolic elements indicating the direction of door opening
5. GPO and lighting is indicated
6. Explanation notes
7. Relevant details fo the plumber indicating the location of the waterpipes and drainage for the sink.
/AR







No comments:
Post a Comment